堺市での不動産売却|センチュリー21ユースフル > (戸建(売買))地域から探す > 堺市西区 > 物件詳細
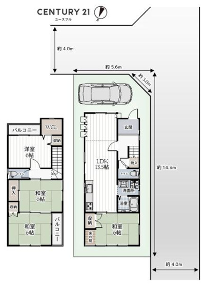
■南向き角地 約23.00坪
■平成3年築の4LDK
■前面道路幅員:約4m以上
■車庫1台付
※写真や図と実際の現状とが異なる場合は現状を優先させていただきます。










(※元利均等方式 金利5.00%まで ※返済年数5~50年まで入力できます)
(※ボーナスは年2回で計算しています。1000万円まで入力できます)
(※物件購入時、その他諸費用が発生する場合がございます)
| 所在地 | 大阪府堺市西区草部 | ||
|---|---|---|---|
| 交通 | |||
| 間取り/詳細 | 4LDK/ | 建物面積(坪数) | 82.21㎡(24.86坪) |
| 価格 | 1,180万円 | ||
| 駐車場/月額料金 | 有/- | ||
| 土地の敷金/保証金 | -/- | 借地料/借地期間 | -/- |
| 土地権利 | 所有権 | 土地面積(坪数) | 76.04㎡(23.00坪) |
| 傾斜地部分面積 | - | 路地状敷地 | - |
| 私道負担面積/セットバック | -/- | 高圧線下面積 | - |
| 地目/地勢 | 宅地/- | 接道状況 | 二方(南東 私道 4.0m 間口 5.6m)(南西 私道 4.0m 間口 14.3m) |
| 建ぺい率/容積率 | 60%/160% | 用途地域 | 第一種住居 |
| 都市計画 | 市街化区域 | 種別/構造 | 中古一戸建/木造 |
| 階建 | 2階建 | 築年月(築年数) | 1991年 4月 (築34年) |
| 総区画数/販売区画数 | -/- | 向き | - |
| 現況 | 空家 | その他の法令上の制限 | - |
| 取引態様/引渡時期 | 専属専任媒介/相談 | 建築確認番号 | - |
| 物件番号 | 98369888 | 取引条件の有効期限 | 2026年02月06日 |
| 設備条件 |
|
||
| 備考 |
1階LDK部分約6.19平米が増築未登記です 前面道路所有権公簿267.22平米:持分11分の1 売主の契約不適合責任 現状有姿 司法書士は売主指定 |
||
| 取扱会社 |
|
||
| QRコード |
このQRコードを読み取ることで、スマホでも物件情報を確認できます。 |
||
※地図上に表示される物件の位置は付近住所に所在することを表すものであり、実際の物件所在地とは異なる場合がございます。
堺市西区草部の中古一戸建に関するこだわり条件から探す